Pre-Built #21858 Go Back

Exterior Pictures

  • Charcoal Timberline Shingles
  • LP Smartside French Grey Siding
  • White Rollex Pre-finsihed Steel Fascia & Aluminum Soffit
  • White Integrity All-Ultrex Windows
  • Bayer Built Steel Entry Door
  • Pre-Engineered Roof Trusses
  • 18" Engineered Floor Trusses
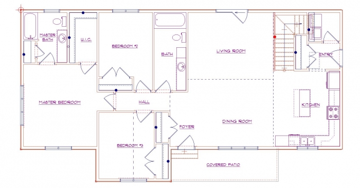
  • 3 Bedrooms
  • 2 Bathrooms
  • Vaulted Living Room Ceiling
  • Custom Cabinets
  • Custom Countertops
  • Prefinished Knotty Alder Milwork
  • Prefinished Closet Shelving
  • 5/8" Sheetrock Ceiling
  • 1/2" Sheetrock Walls
  • 2 Coats Interior Paint
  • 3/4" T&G StableEdge Flooring, Glued & Screwed
  • R21 Walls/R50 Flat Ceiling Insulation
  • 2x6 Exterior Walls
  • 1644 SF Living Area

 

Copyright © 2008 - 2026 Riverside Building Center

Copyright © 2008-2014 Riverside Building Center