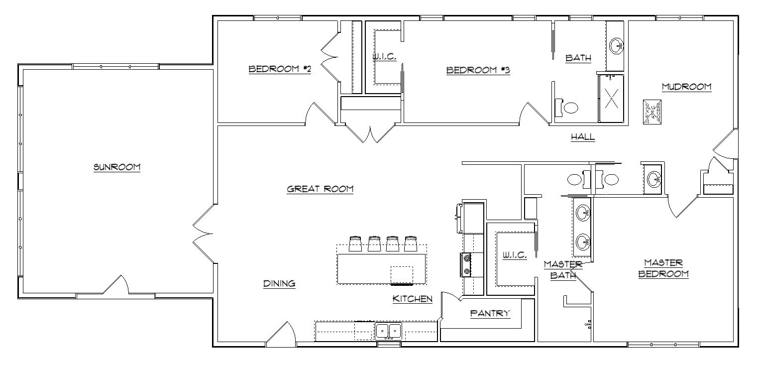
Pre-Built #-25173 Go Back

Exterior Pictures

Interior Pictures

  • Malarky Legacy-Brillian Black
  • LP Smartside Siding-Graphite
  • Lp Smartside Trim-Onyx
  • Black Rollex Pre-finished Steel Fascia
  • & Aluminum Soffit
  • Marvin Essential Casement-Ebony
  • Bayer Fiberglass Entry Door
  • Dura Supreme-Knotty Alder
  • Prefinished-Cappuccino
  • Quartz Countertops-Onsite
  • Knotty Alder Millwork-Custom
  • Vaulted Ceiling
  • Knotty Alder T&G Ceiling
  • ½" Sheetrock Walls
  • 2 Coats Interior Paint
  • Engineer Floor & Roof Trusses
  • ¾" T&G Stable Edge Flooring
  • Glued & Screwed
  • R21 Walls R49 Ceiling
  • 2x6 Exterior Walls

 

Copyright © 2008 - 2026 Riverside Building Center

Copyright © 2008-2014 Riverside Building Center