Pre-Built #-20164 Go Back

Pictures

  • GAF HDZ Weathered wood Shingles
  • PlyGem d-4 Vinyl Siding Thistle
  • White Rollex Pre-finished Steel Fascia & Aluminum Soffit
  • Fiberon Latte Decking
  • White Integrity All-Ultrex Windows
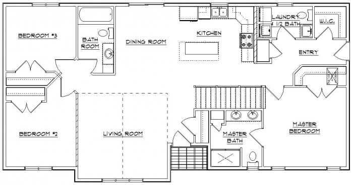
  • 3 Bedroom & 2 1/2 Bathrooms
  • Woodland Custom Hickory Cabinets
  • Mohawk Vinyl Plank Flooring
  • Carpeted Bedrooms
  • Wilsonart Laminate Countertops
  • Prefinished Oak Base & Casing
  • Oak Solid Core Flush Doors
  • 5/8" Sheetrock Ceiling
  • 1/2" Sheetrock Walls
  • 2 Coats Interior Paint
  • Pre-engineered Roof Trusses
  • 18" Engineered Floor Trusses
  • 3/4" T&G Stable Edge Flooring, Glued & Screwed
  • R21 Walls/R50 Flat Ceiling
  • Prefinished Shelving
  • 2x6 Exterior Walls 
  • 1632 SF Living Area

 

Copyright © 2008 - 2026 Riverside Building Center

Copyright © 2008-2014 Riverside Building Center