Pre-Built #-22167 Go Back

  • GAF Landmark Mission Brown Shingles
  • LP Smartside Black Hills
  • LP Smartside Shakes-Sierra
  • Bronze Rollex Pre-finished Steel Fascia & Aluminum Soffit
  • Fiberon Brownstone Decking
  • Bronze Marvin Casement Windows
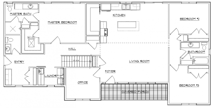
  • 3 Bedroom & 2 1/2 Bathrooms
  • Legend Knotty Alder Cabinets
  • Wilsonart Laminate Countertops
  • Prefinished Alder Base & Casing
  • Prefinished 3 Panel Doors
  • 5/8" Sheetrock Ceiling
  • 1/2" Sheetrock Walls
  • 2 Coats Interior Paint
  • Pre-engineered Roof Trusses
  • 20" Engineered Floor Trusses
  • 3/4" T&G Stable Edge Flooring, Glued & Screwed
  • R21 Walls/R50 Flat Ceiling
  • Prefinished Shelving
  • 2x6 Exterior Walls 
  • 2020 SF Living Area

 

Copyright © 2008 - 2026 Riverside Building Center

Copyright © 2008-2014 Riverside Building Center