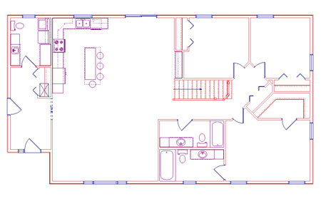
Pre-Built #2892 Go Back

Features...

  • MARVIN INTEGRITY DOUBLE HUNG WINDOWS
  • PRE-FINISHED JAMBS
  • 5 ⁄ 8" SHEETROCK CEILING
  • HARDI FIBER CEMENT SIDING
  • 1 ⁄ 2" SHEETROCK WALLS
  • STEEL DOOR W ⁄ 1 SIDELIGHT
  • 6 PANEL OAK PREFINISHED DOORS
  • 29 GA. STEEL ROOF WITH EXPOSED FASTENERS
  • AIR BARRIER
  • 3 BEDROOMS W ⁄ LAUNDRY
  • 2x12 FLOOR JOISTS @16" O.C.
  • ROLLEX PREFINISHED STEEL FASCIA & ALUMINUM SOFFIT
  • R19 WALLS⁄ R42 FLAT CEILING INSULATION
  • PRE-ENGINEERED ROOF TRUSSES
  • 2 COATS INTERIOR PAINT
  • PREFINISHED MAPLE KITCHEN CABINETS W ⁄ LAMINATE COUNTERTOPS
  • PREFINISHED CLOSET SHELVING
  • PREFINISHED OAK VANITIES
  • 3 ⁄ 4"T&G STABLEEDGE FLOORING GLUED & SCREWED
  • 2x6 EXTERIOR WALLS
  • CLAD DOOR ⁄ WINDOW FRAMES
  • OAK & IRON RAILING
  • CULTURED GRANITE VANITY TOPS
  • OAK PREFINISHED CASING ⁄ BASE
  • 1808 SF LIVING AREA

 

Copyright © 2008 - 2026 Riverside Building Center

Copyright © 2008-2014 Riverside Building Center