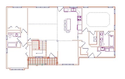
Pre-Built #2897 Go Back

Features...

  • Marvin Integrity Casement Windows
  • Fiberglass Entry Door
  • 30 Yr GAF Laminated Shingles
  • Pre-engineered Floor Trusses
  • Pre-engineered Roof Trusses
  • 2 Coats Interior Paint
  • Pre-finished Vanities
  • 3 ⁄ 4" T&G StableEdge Flooring, Glued & Screwed
  • Pre-finished Canexel Siding
  • White Arch-top Doors
  • 3 Bedrooms & Laundry
  • Rollex Pre-finished Steel Fascia & Aluminum Soffit
  • Pre-finished Maple Cabinets w ⁄ Laminate Tops & Granite Island
  • Clad Door & Window Frames
  • White Interior Trim
  • Air Barrier
  • 1800 SF Living Area
  • 2x6 Exterior Walls
  • Pre-finished Closet Shelving
  • R19 Walls ⁄ R50 Flat Ceiling Insulation
  • 10´ Ceiling in Dining Room
  • Vaulted Ceiling in Great Room
  • Pan Ceiling in Master Bedroom
  • 1 ⁄ 2" Sheetrock Walls
  • 5 ⁄ 8" Sheetrock Ceiling

 

Copyright © 2008 - 2026 Riverside Building Center

Copyright © 2008-2014 Riverside Building Center