Pre-Built #21110 Go Back

Features...

  • Marvin Integrity Casement Windows
  • Steel Entry Door
  • Steel Roof
  • 18" Floor Trusses
  • Pre-engineered Roof Trusses
  • 2 Coats Interior Paint
  • Prefinished Vanities
  • 3 ⁄ 4" T&G StableEdge Flooring, Glued & Screwed
  • Steel Siding
  • Oak 6-Panel Interior Doors
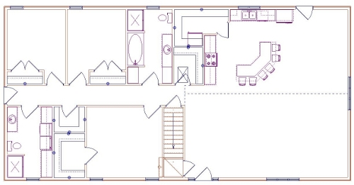
  • 3 Bedrooms with Laundry
  • Metal Sales Pre-finished Steel Fascia & Aluminum Soffit
  • Oak Kitchen Cabinets with Laminate Countertops
  • Clad Door & Window Frames
  • Oak Interior Trim
  • Air Barrier
  • 5 ⁄ 8" Sheetrock Ceiling
  • 1 ⁄ 2" Sheetrock Walls
  • Vaulted Ceiling in Living,Kitchen,Dining Room
  • R19 Walls ⁄ R40 Flat Ceiling Insulation
  • Prefinished Closet Shelving
  • 2x6 Exterior Walls
  • 2048 SF Living Area

 

Copyright © 2008 - 2026 Riverside Building Center

Copyright © 2008-2014 Riverside Building Center