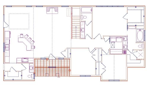
Pre-Built #21112 Go Back

Features...

  • Marvin Integrity Casement Windows
  • Fiberglass Entry Door
  • Timberline HD Shingles
  • 22" Floor Trusses
  • Pre-engineered Roof Trusses
  • 2 Coats Interior Paint
  • Prefinished Vanities
  • 3 ⁄ 4" T&G StableEdge Flooring, Glued & Screwed
  • James Hardie 8" Lap Siding
  • Maple 2-Panel Interior Doors
  • 3 Bedrooms with Laundry
  • Rollex Pre-finished Steel Fascia & Aluminum Soffit
  • Maple Kitchen Cabinets
  • Clad Door & Window Frames
  • MDF Interior Trim
  • Fireplace in Great Room
  • Prefinished Closet Shelving
  • Sauna ⁄ Shower & Jacuzzi Tub in Master Bath
  • 5/8" Sheetrock Ceiling
  • 1/2" Sheetrock Walls
  • Vaulted Ceiling in Great Room ⁄ Foyer & Bedroom #2
  • Pan Ceiling in Dining Room
  • R19 Walls ⁄ R40 Flat Ceiling Insulation
  • 1940 SF Living Area

 

Copyright © 2008 - 2026 Riverside Building Center

Copyright © 2008-2014 Riverside Building Center