Pre-Built #21333 Go Back

Features...

  • Charcoal GAF TL30 Shingles
  • Pacific Blue Rollex D4 Steel Siding
  • The Foundry Shakes
  • Rollex Pre-finished Steel Fascia & Aluminum Soffit
  • Marvin Integrity Double Hung Windows
  • Bayer Built Steel Front Door
  • 18" Floor Trusses
  • Pre-engineered Roof Trusses
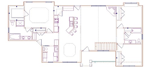
  • 3 Bedrooms 2 1/2 Bathrooms
  • Vaulted Ceiling in Living Room & Foyer
  • Pan Ceiling in Dining Room & Master Bedroom
  • Custom Kitchen Cabinets
  • Prefinished Vanities
  • Custom Interior Doors
  • Prefinished Closet Shelving
  • 5/8" Sheetrock Ceiling
  • 1/2" Sheetrock Walls
  • 2 Coats Interior Paint
  • 3/4" T&G StableEdge Flooring, Glued & Screwed
  • R21 Walls/R49 Flat Ceiling Insulation
  • 2x6 Exterior Walls
  • 1855 SF Living Area

 

Copyright © 2008 - 2026 Riverside Building Center

Copyright © 2008-2014 Riverside Building Center