Pre-Built #21444 Go Back

Exterior Picture

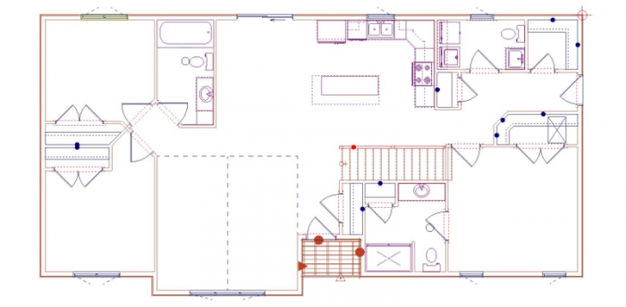
Features...

  • Mission Brown Timberline Shingles
  • Natural Clay CertainTeed Siding
  • Mocha Rollex Pre-finished Steel Fascia & Aluminum Soffit
  • Bronze Marvin Integrity All-Ultrex Casement Windows
  • Bayer Built Fiberglass Front Door
  • Pre-engineered Roof Trusses
  • 18" Floor Trusses
  • 3 Bedrooms & 2 Bathrooms
  • Vaulted Ceiling in Living Room
  • Oak, 1/2 Overlay, Rye, Kraftmaid Cabinets
  • Laminate Countertops
  • Oak Interior Doors
  • Prefinished Closet Shelving
  • 5/8" Sheetrock Ceiling
  • 1/2" Sheetrock Walls
  • 2 Coats Interior Paint
  • 3/4" T&G StableEdge Flooring, Glued & Screwed
  • R21 Walls/R49 Flat Ceiling Insulation
  • 2x6 Exterior Walls
  • 1632 SF Living Area

 

Copyright © 2008 - 2026 Riverside Building Center

Copyright © 2008-2014 Riverside Building Center