Pre-Built #21445 Go Back

Exterior Pictures

 

Features...

  • Weather Wood Timberline Shingles
  • Walnut LP Smartside Siding
  • White Rollex Pre-finished Steel Fascia & Aluminum Soffit
  • White Marvin Integrity Casement Windows
  • Bayer Built Fiberglass Front Door
  • Pre-engineered Roof Trusses
  • 18" Floor Trusses
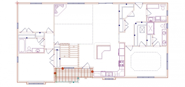
  • 3 Bedrooms & 2 1/2 Bathrooms
  • Vaulted Ceiling in Living Room
  • Pan Ceiling in Master Bedroom
  • Kraftmaid Cabinets
  • Prefinished Vanities
  • Polar Interior Doors
  • Prefinished Closet Shelving
  • 5/8" Sheetrock Ceiling
  • 1/2" Sheetrock Walls
  • 2 Coats Interior Paint
  • 3/4" T&G StableEdge Flooring, Glued & Screwed
  • R21 Walls/R49 Flat Ceiling Insulation
  • 2x6 Exterior Walls
  • 2016 SF Living Area

 

Copyright © 2008 - 2026 Riverside Building Center

Copyright © 2008-2014 Riverside Building Center